Caractéristiques
- Surface intérieure: 17.9
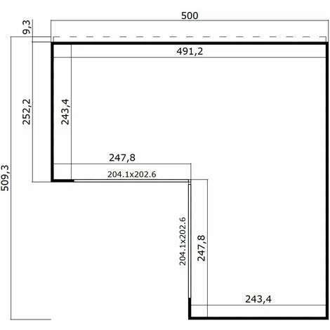
- Longueur: 500
- Largeur: 500
- Épaisseur: 18
- Type de toiture: Feutre bitumé
- Type de bois : Épicéa
- Matière: Bois
L’abri Doméo 6 Plus est très apprécié pour son design moderne de forme cubique et d’angle moderne avec une protection en aluminium qui permettent un gain de place et une robustesse pour votre abri de jardin.
Ajoutez une touche de luxe dans votre jardin et profitez de deux pièces supplémentaires.
Surface utile abri : 17,90 m²
Dimension intérieur abri : 491,2 x 243,4 + 247,8 cm
Dimension au sol : 500 x 500 cm
Dimension hors tout : 520 x 520 x 251 cm
Mode de construction : assemblage d’angle moderne à fixer par vissage
Voliges : 18 mm
Les madriers en Épicéa non traité de haute qualité avec une épaisseur de 44 mm, un plancher en bois inclus.
L’abri est équipé de deux grandes baies vitrées coulissantes en double vitrage de 204,1 x 202,6 cm. Ces ouvertures permettent une très grande luminosité dans votre abri et vous donne comme une impression de ne plus faire qu’un avec la nature.
Le feutre bitumé pour première couverture est inclus.
Nous vous conseillons d’appliquer un produit antifongique et anti-insecticide, avant le montage de l’abri (sur les 4 faces de chaque pièce en bois) et ensuite appliquer un saturateur ou une lasure lors du montage. Pour l’achat des produits adaptés, rapprochez-vous d’un magasin spécialisé.
Tous les abris sont vendus sans les accessoires de décoration et à monter soi-même.



















Avis
Il n’y a pas encore d’avis.