Caractéristiques
- Surface intérieure: 13.76
- Longueur: 470
- Largeur: 447
- Épaisseur: 16
- Matière: Bois
La maison d’été Lennart est une grande et spacieuse maison d’été avec beaucoup de place pour les invités ou pour un atelier de bricolage.
La maison d’été est une belle maison en bois avec trois fenêtres à meneaux en verre isolant qui peuvent être ouvertes et une porte d’entrée avec des meneaux assortis. Elle est fournie en kit avec des sections de mur prêtes à l’emploi que vous pouvez assembler vous-même. La peinture et le revêtement du plafond ne sont pas inclus.
Description de l’article :
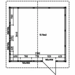
- Dimensions extérieures avec débordement du toit : 447 x 470 cm
- Dimensions extérieures : 399 x 385 cm
- Hauteur totale : 284 cm
- Hauteur de la paroi latérale : 201 cm
- Forme du toit : toit à pignon
- Surface du toit : 21,87 m²
- Pente du toit : 17°
- Porte-à-faux du toit avant/gauche/droite/arrière : 42,4/23,4/42,4 cm
- Surface utile : 13,76 m²
- Épaisseur de la paroi : 70 mm
Inclus dans la livraison :
- Parties de mur : parties de mur finies, non isolées, avec papier coupe-vent, bois de sous-construction de 70 mm et panneaux debout de 16 mm avec surface sciée.
- Plancher : planches Rauspund rabotées de 19 mm poutres de plancher 45 x 90 mm
- Porte : 1 pièce de 905 x 1930 mm comprenant une serrure, une poignée et une fenêtre en verre isolant avec des barres de verre.
- Fenêtres : 3 pièces de 765 x 1050 mm, fenêtres en verre isolant avec des barreaux de vitrage pouvant être ouverts
- Autre : vis et clous inclus
Attention. Non inclus dans la livraison :
Revêtement de surface tel que la sous-couche, le feutre de toiture, les bardeaux ou les feuilles de toit : non inclus.



















Avis
Il n’y a pas encore d’avis.